Search

Leave a Message

Thank you for your message. We will be in touch with you shortly.

Explore Our Properties

Property Description

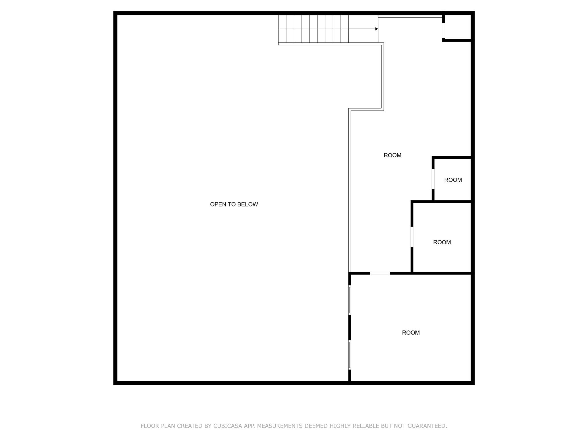
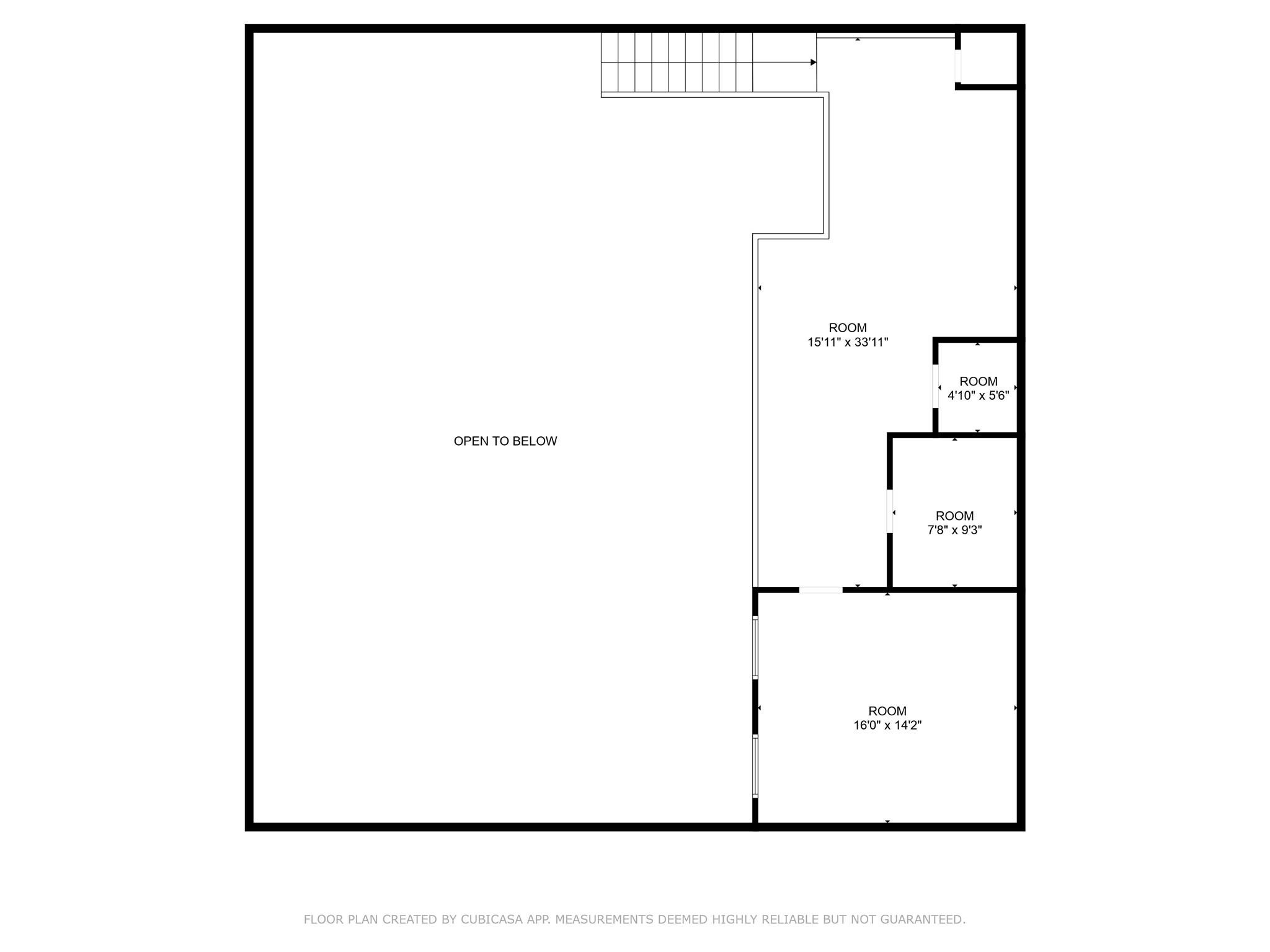
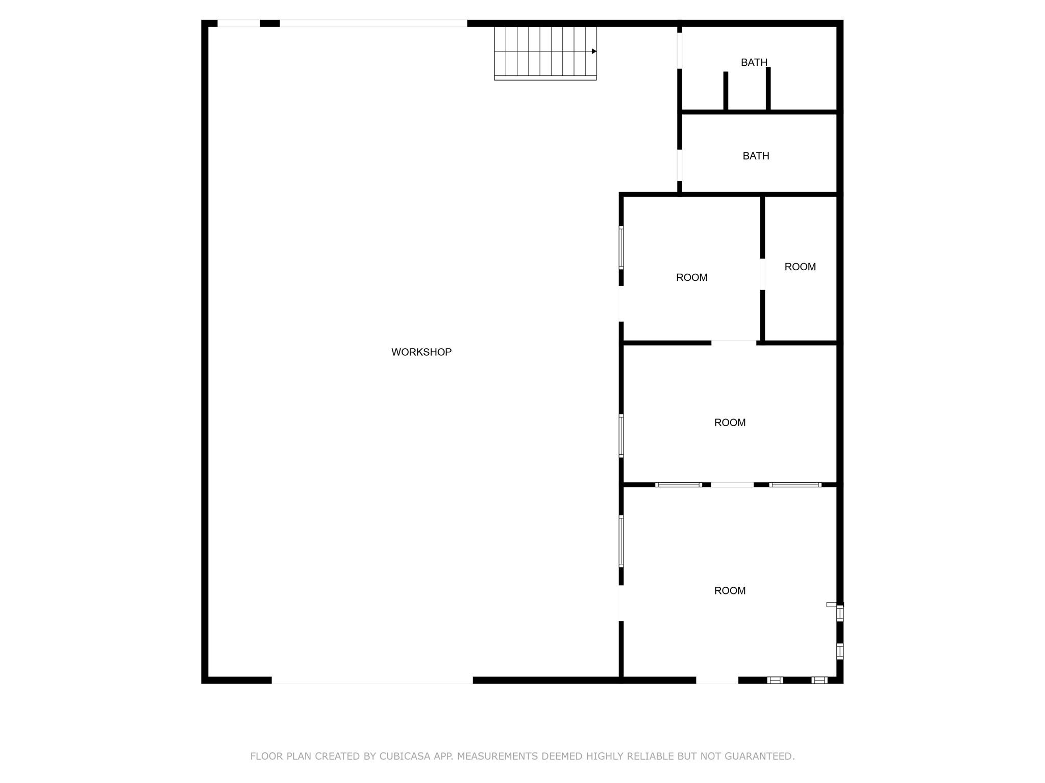
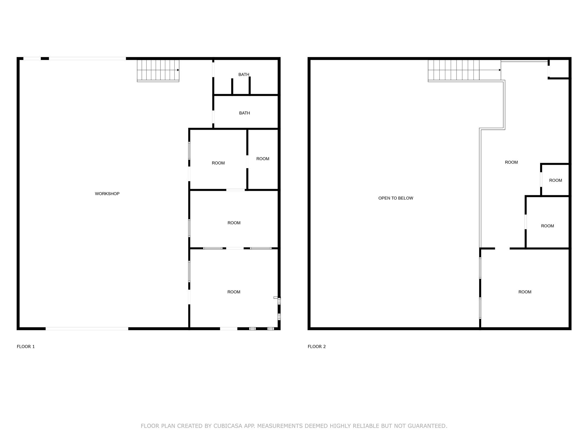
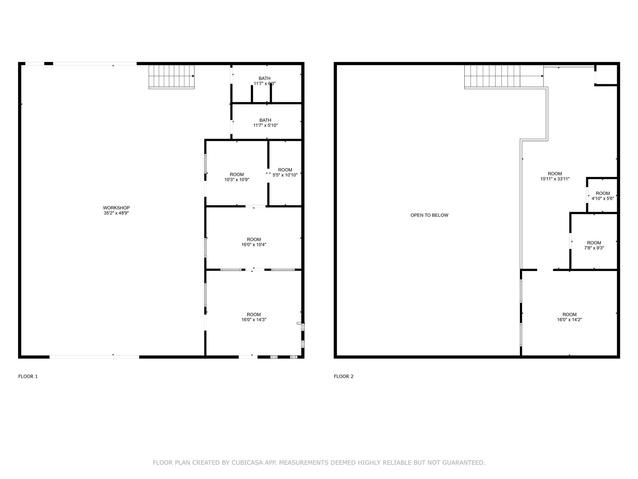
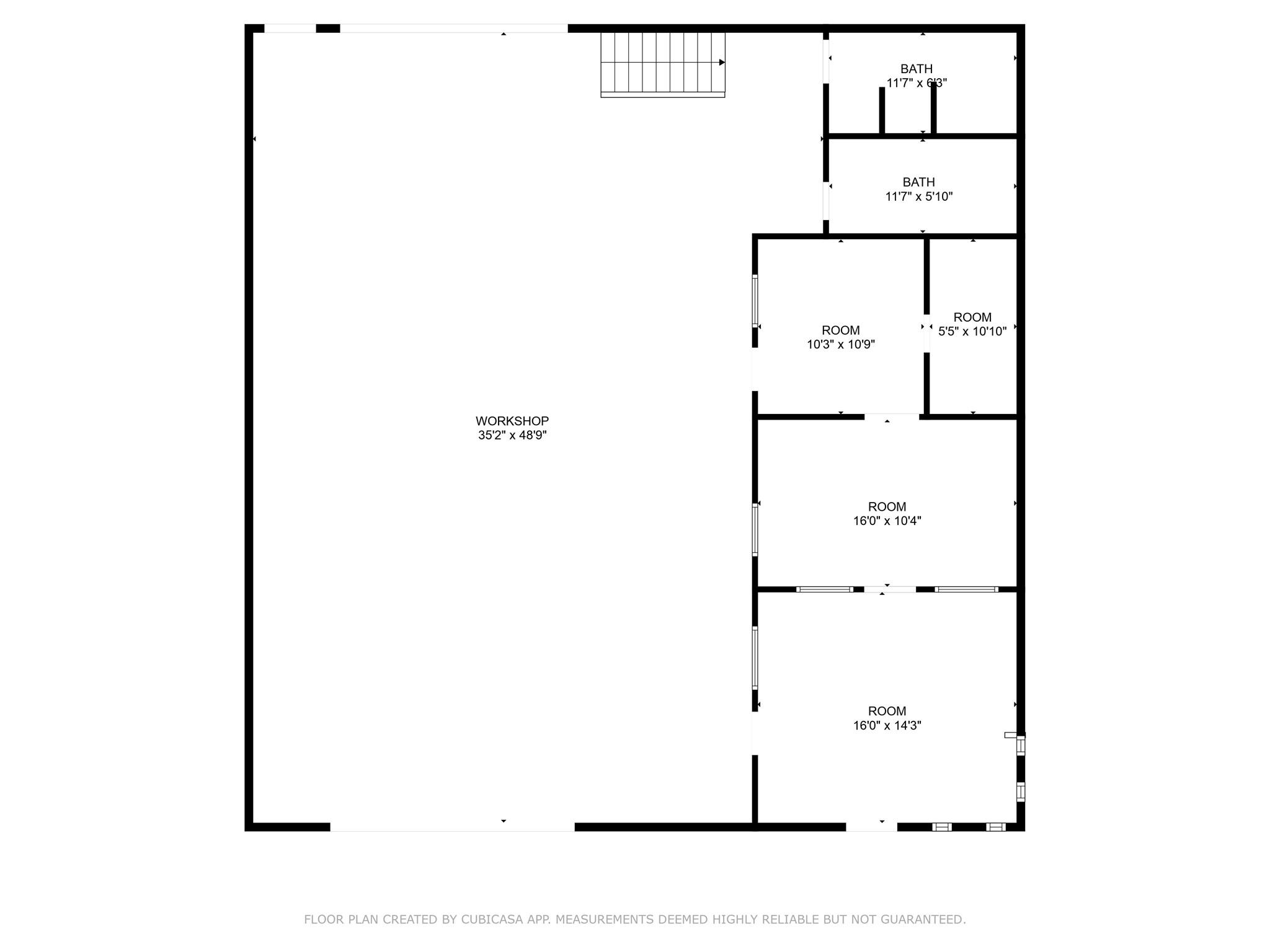
+-900 sq ft Office Space - Includes reception area and private offices on 1st and 2nd Floors Double Bay Doors -+20ft with -+25 ft Building Height - Easy access for loading and unloading Quick Access to Grand Parkway (99) & FM 242 - Streamlined connectivity to major routes +-4,500 sq ft Warehouse - Open layout with excellent storage and workflow potential Heavy Traffic Frontage - Located directly on intersection of Rayburn and 1485 for maximum exposure! Room for expansion or for use as mechanic shop on cars and 18 wheelers or car dealership.

Overview

Property Status
For Sale
Lot Size
1.27 Acres
MLS ID
98175243
Property Type
Land

Features & Amenities

Water Source
Public
Utilites
Natural Gas Not Available, Cable Not Available, Electricity Available
Lot Features
Other, 1 Up to 2 Acres
Sewer
Septic Tank
Elementary School
Hope Elementary School (Conroe)
Middle School
Moorhead Junior High School
High School
Caney Creek High School
School District
11 - Conroe
Sales Price
$800,000

Downloads

16610 Fm 1485 Road

Schedule a Tour

We would love to help you see this beautiful home! As a full-service brokerage, we can help you tour. Please submit an offer, and answer questions about the buying process.

Enter a valid email

Thank you

for your interest in 16610 Fm 1485 Road, Conroe, TX 77306

back to page
16610 Fm 1485 Road
Navigate

Mortgage

Estimate your monthly mortgage payment, including the principal and interest, property taxes, and HOA. Adjust the values to generate a more accurate rate.

$0,000 Your Payment 20 15 65
$0,000 Your Payment

I'm Interested In

16610 Fm 1485 Road

or
  • CallXavier Villegas

    License #729308

    (713) 677-4147
  • Follow Us On Instagram